Hemming-reinforced shelf deck roll forming machine

description1
Zipper closure 1/4 zip athletic pullovers for men. Stretchy, lightweight, fast-drying fabric for superior performance. REGULAR FIT - US standard sizes. An athletic fit that sits close to the body for a wide range of motion, designed for optimal performance and all day comfort. FEATURES - Quarter zip closure;Thumbholes on long sleeves to keep them in place during workout
Description




Machine features



1. Produces pallets of different widths by automatically adjusting the lateral displacement.

2. The cassette is used to produce reinforcement ribs; when ribs are not needed, the cassette can be removed.




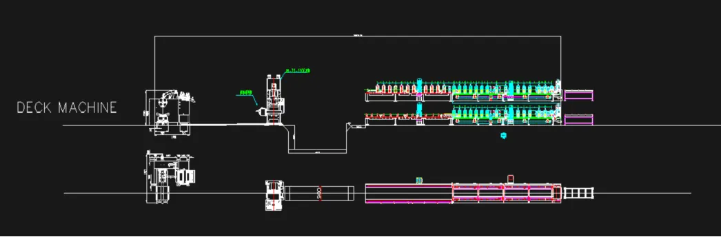
Flow chart



Decoiler and leveler--Punch press--Roll forming machine--Hydraulic cut--Out table

Decoiler and Leveler:

Compared to a separate decoiler and a separate leveler, the integrated decoiler-leveler machine can save space. If independent decoiler and leveler are used, about 3 meters of space is needed between them.

The decoiler is equipped with a pneumatic pressure arm that holds the steel coil to prevent it from unrolling and injuring the worker.

This decoiler is also equipped with a loading car to facilitate the coil loading process.

It is necessary to level the steel before punching to release internal stresses and improve the efficiency of the punching and forming process.

Punching Machine:

We use a 110-ton Yangli brand punching machine. Because the holes needed to be punched in the profiles are dense, using a punching machine can increase the line’s efficiency compared to a hydraulic press. The Yangli brand has after-sales service points in Mexico, so customers don’t worry about post-sale issues.

The punching machine is equipped with a servo feeder, whose advantages are fast feeding speed and high precision, ensuring accurate punching position.

The punching machine is combined with an independent electrical cabinet. We provide each customer with an instruction manual explaining the operation of the electrical cabinet.

Between the press and the forming machine, there are limit sensors to coordinate speeds. When the steel touches the lower limit, indicating that the punching machine speed is too fast, the punching machine stops. When the steel touches the upper limit, indicating that the forming machine speed is too fast, the machine stops.

Roll Forming Machine:

The roll forming machine has a cast iron structure and operates with chain transmission. In total, there are 28 forming stations, of which 12 are used to form ribs. This part can be removed when ribs are not needed.

We offer a five-year warranty for the motors and rollers. The rollers and shafts are treated to extend their service life.

Hydraulic Cutting:

We use hydraulic cutting with the machine stopped. It uses a photocell cutting system, which starts cutting when the photocell detects multiple perforations. The cutting produces waste of 8–10 mm. If there is any error in the length of the cut profile, it can be corrected simply by re-entering the data on the control panel. Detailed instructions can be found in the manual.




Parameters



Hemming-reinforced shelf deck roll forming machine
Item      Optional configuration
   Raw material:    A1008 and A1011    Thickness(MM): 0.8mm/Gauge22
   Yield strength:    25-35ksi
   Line speed:    4-5pcs/min    
   Decoiler and leveler:    Hydraulic    With loading car
   Decoiler loading capacity:    5T
   Number of leveling rolllers:    7 rodillos 
   Diámetro de rodillos de aplanador:    80mm
   Servo motor power:    3kw with reducer
   Punch press:    JH21-110    Yangli Brand
   Punch press working method:    Pneumatic
   Punch press speed:    40 times/min
   Raw material of upper and lower die:    A3
   Raw material of mold:    SKD-11    1 set
   Roll forming motor power:    7.5kw*2    5 years warranty
   Width change motor power:    1.5kw*2    5 years warranty
   Transmission system:    Chain
   Cassette type:    Cassette of 12 roll forming stations    Reinforcement forming
   Roll forming stations:    16+12
   Machine structutre:    Cast iron support    
   Shaft material:    40Cr
   Roller material:    Cr12    5 years warranty
   Shaft diameter:    φ60 mm    5 years warranty
   Width adjustment:    Transverse automatic    Few seconds
   Cutting method:    Hydraulic cutting    Stop to cut
   Hydraulic cut method:    5.5kw
   Width of material loss:    8-10mm
   Blade raw material:    SKD11    2 sets
   Encoder brand:    Omron
   Length tolerance:    ≤+/- 0.5mm
   Out table length:    4m
   Inverter:    Yaskawa Brand
   PLC:    Siemens Brand  
   HMI:    MCGS Brand
   Language:    English    Or spanish
   Power supply:    480V 50Hz 3Ph  * Or according to your requirement
   Color:    Blue and orange  * Or according to your requirement
   Delivery:    120 Days
   Container:    2*40GP
   Total weight:    40T
   Dimension:     30m (L)*2.2m (W)

CONTACT US